Description

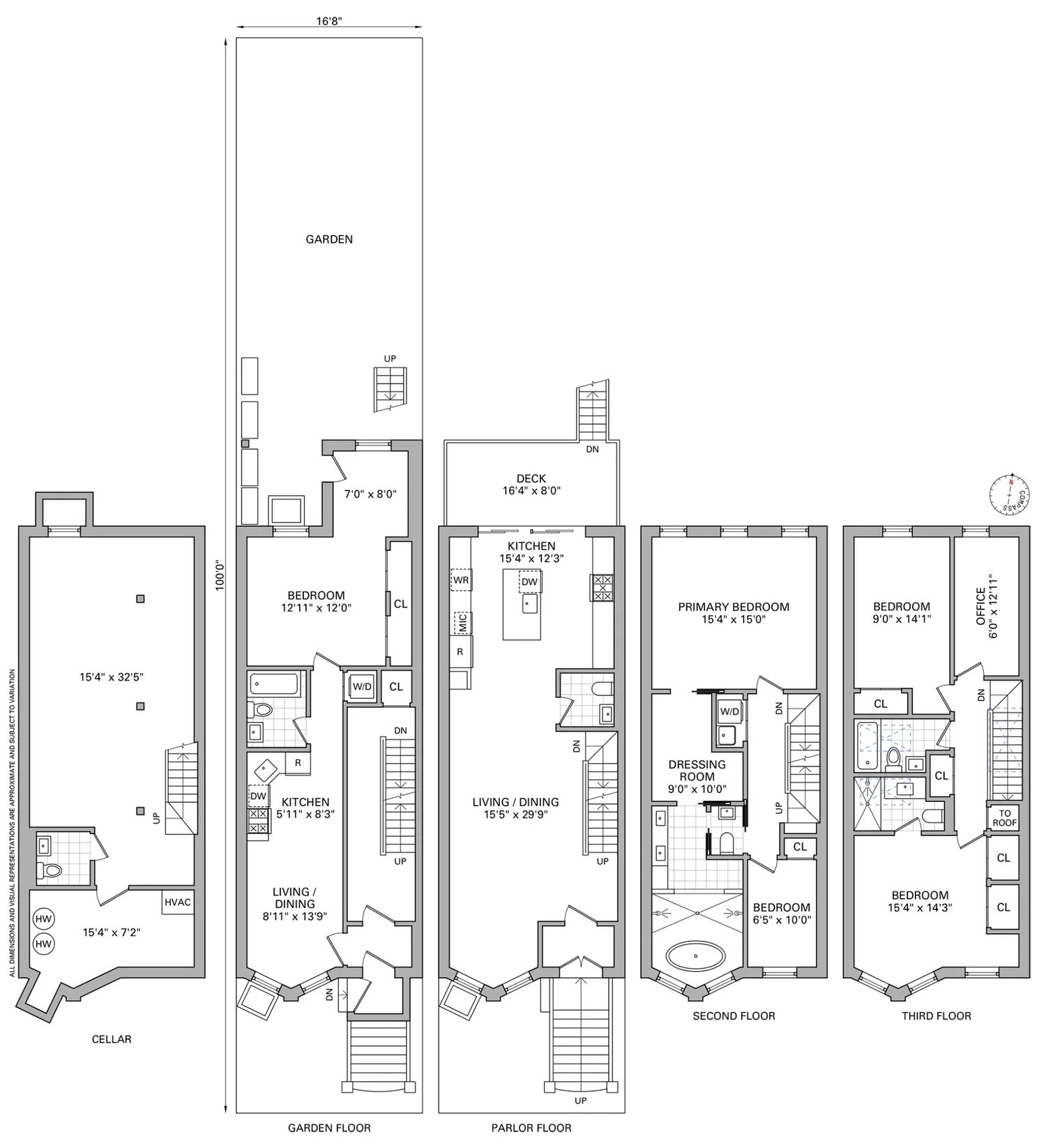
Welcome to 485 Ηalseу Street, a meticulously renovated 1899 townhouse that seamlessly blends timeless architectural character with refined modern living. This two-family brownstone boasts 5 bedrooms, 1 home office, 4 full bathrooms, 2 powder rooms, a spacious parlor deck, and a sprawling backyard garden. Every inch of this home exudes attention to detail, from the original doors to the exposed brick that preserves the home’s rich history while offering high-end finishes and cutting-edge technology.
From the moment you enter the owner’s residence, you are greeted by a sense of scale and warmth that defines classic Brooklyn townhouses. Original details nod to the home’s historic roots, while contemporary finishes and systems elevate everyday living. Wide-plank white oak floors, exposed brick, and custom millwork create a cohesive aesthetic that feels both elevated and inviting.
The heart of the home is the chef’s kitchen, designed for both entertaining and daily use. Outfitted with premium appliances—including an integrated Fisher & Paykel refrigerator and dishwasher, Wolf range, Sharp microwave, and Frigidaire wine cooler—the kitchen is as functional as it is striking. Clean-lined cabinetry and generous prep space make it ideal for hosting, while the seamless flow to the rear of the home enhances the indoor-outdoor experience.
Upstairs, the sleeping quarters are thoughtfully laid out to maximize privacy and comfort. Bedrooms are well-proportioned and filled with natural light, while spa-like bathrooms feature refined finishes and calming tones. A dedicated laundry setup with Electrolux washer and vented dryer adds everyday convenience without compromising aesthetics.
The garden level with its spacious bedroom, bathroom, and W/D provides flexibility—perfect for extended living, guest accommodations, or income potential—making this home as practical as it is beautiful.
Set on a picturesque, tree-lined block in Stuyvesant Heights, 485 Halsey is moments from beloved neighborhood destinations, including Saraghina, Peaches, Trad Room, and Laziza, along with multiple nearby parks offering green space and recreation. Transportation is effortless with the Utica Avenue A/C Station just moments away, and convenient access to JFK Airport.
485 Halsey Street is a rare opportunity to own a reimagined townhouse that honors its historic past while delivering the comfort, style, and functionality today’s buyers expect.
View More

Building Features 3 Floors2 Units

intercom

Unit Features

dishwasher, range, refrigerator, rangehood, stainlesssteelappliances
terrace
washerdryer
Exposures: North, South
Pet Policy: Building Yes, Cats Ok, DogsOk

$2,895,000 / $844 per ft²

Listed on Mar 24, 2026

48 Days on Market

5 Beds / 4 Baths + 2 Half Baths / 3,430 ft²

Total Monthly expenses: $430

Maintenance: - / R.E. Taxes $430

Other Details:

Two Family

Lot Size: 16.67' x 100.0' Built: 16.67' x 40.0'

Zoning: B1-9

Exclusively listed with: Compass Source: RLS

Tali
Berzak

[email protected]

(917) 246-8581

Jonathan
Ortiz

[email protected]

(917) 294-5953

Listing Courtesy of Compass View Listing

Unit listing history

Date Status Amount Listed by
Loading History...

Similar Listings for Sale

254 STUYVESANT AVE - Unit HOUSE

Bedford Stuyvesant / TOWNHOUSE

$2,900,000

On market for $2,900,000

0% from ask / 320 days on market

Monthly Expenses: $0

7 beds - 4.0 baths / 3360 ft²

137 PUTNAM AVE - Unit HOUSE

Bedford Stuyvesant / TOWNHOUSE

$2,850,000

On market for $2,850,000

0% from ask / 6 days on market

Monthly Expenses: $481

5 beds - 3.0 baths / 2753 ft²

289 MACON ST - Unit HOUSE

Bedford Stuyvesant / TOWNHOUSE

$2,990,000

On market for $2,990,000

0% from ask / 60 days on market

Monthly Expenses: $0

6 beds - 4.0 baths / 3295 ft²

456 HANCOCK ST - Unit HOUSE

Bedford Stuyvesant / TOWNHOUSE

$2,800,000

On market for $2,800,000

0% from ask / 60 days on market

Monthly Expenses: $0

5 beds - 4.0 baths / 3280 ft²

435A CLASSON AVE - Unit HOUSE

Bedford Stuyvesant / TOWNHOUSE

$2,995,000

On market for $2,995,000

0% from ask / 18 days on market

Monthly Expenses: $0

5 beds - 3.0 baths / 3150 ft²

429 HANCOCK ST - Unit HOUSE

Bedford Stuyvesant / TOWNHOUSE

$2,750,000

On market for $2,750,000

0% from ask / 47 days on market

Monthly Expenses: $0

4 beds - 3.0 baths / 3975 ft²

819 GREENE AVE - Unit HOUSE

Bedford Stuyvesant / TOWNHOUSE

$2,695,000

On market for $2,695,000

0% from ask / 48 days on market

Monthly Expenses: $0

5 beds - 4.0 baths / 3693 ft²

114A HART ST - Unit HOUSE

Bedford Stuyvesant / TOWNHOUSE

$2,695,000

On market for $2,695,000

0% from ask / 11 days on market

Monthly Expenses: $0

5 beds - 3.0 baths / 2750 ft²

826 PUTNAM AVE - Unit HOUSE

Bedford Stuyvesant / TOWNHOUSE

$3,100,000

On market for $3,100,000

0% from ask / 7 days on market

Monthly Expenses: $0

6 beds - 5.0 baths / 3448 ft²

582 QUINCY ST - Unit HOUSE

Bedford Stuyvesant / TOWNHOUSE

$2,599,000

On market for $2,599,000

0% from ask / 62 days on market

Monthly Expenses: $0

5 beds - 4.0 baths / 2912 ft²

578 LAFAYETTE AVE - Unit HOUSE

Bedford Stuyvesant / TOWNHOUSE

$2,595,000

On market for $2,595,000

0% from ask / 14 days on market

Monthly Expenses: $0

5 beds - 4.0 baths / 4000 ft²

318 MADISON ST - Unit HOUSE

Bedford Stuyvesant / TOWNHOUSE

$3,200,000

On market for $3,200,000

0% from ask / 26 days on market

Monthly Expenses: $0

7 beds - 4.0 baths / 3987 ft²

113 JEFFERSON AVE - Unit HOUSE

Bedford Stuyvesant / TOWNHOUSE

$3,400,000

On market for $3,400,000

0% from ask / 46 days on market

Monthly Expenses: $0

4 beds - 4.0 baths / 3529 ft²

326 QUINCY ST - Unit HOUSE

Bedford Stuyvesant / TOWNHOUSE

$2,300,000

On market for $2,300,000

0% from ask / 55 days on market

Monthly Expenses: $0

6 beds - 3.0 baths / 3300 ft²