Description

Pluperfect Ρerfection.

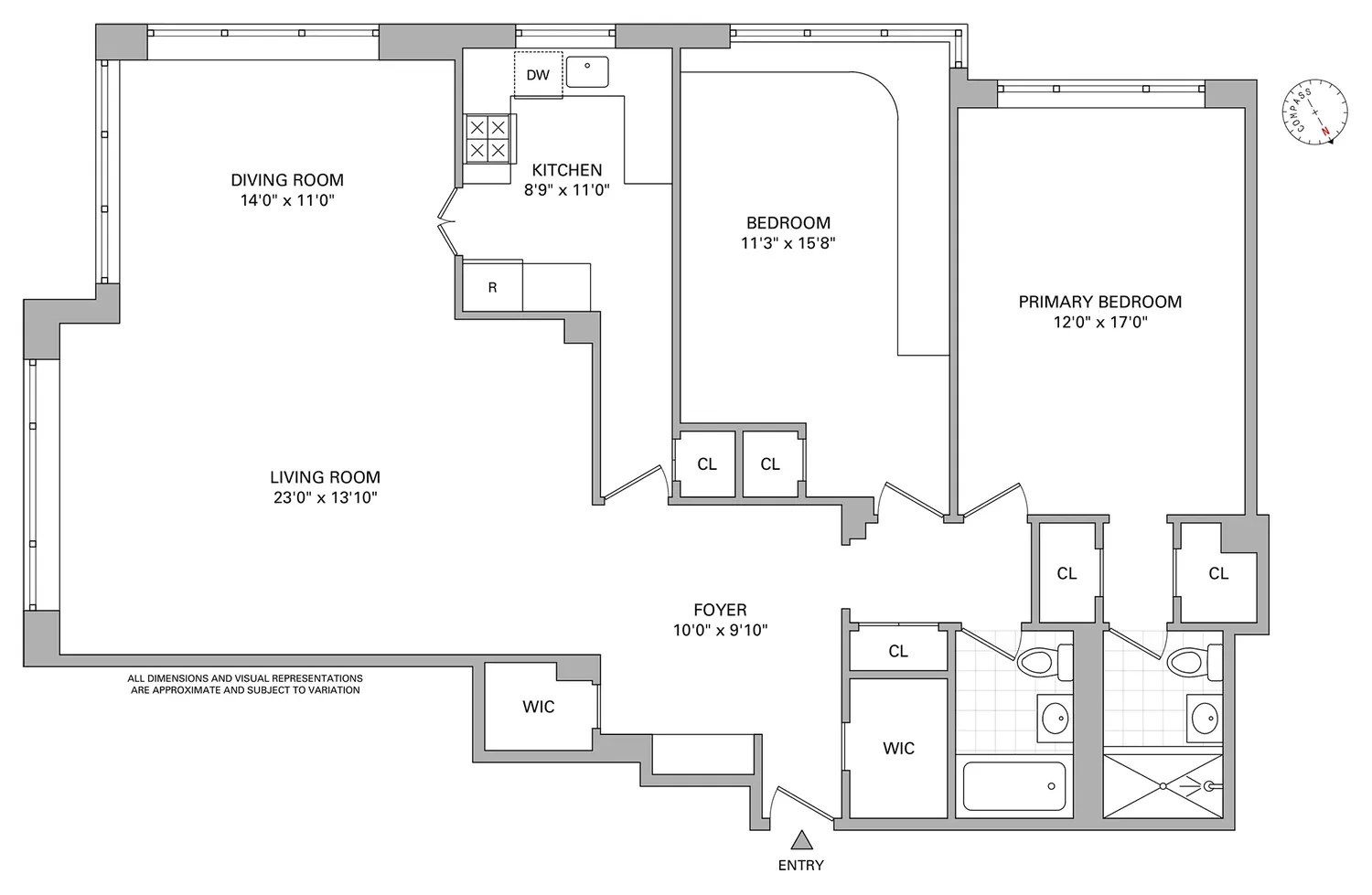
Stunninglу renovated, be the first person to live in this 2-bed, 2-bath corner-unit home with incredible river and city views from every room.

Enter the formal foyer and immediately feel a sense of calm. The oversized living/dining room has a wall of windows facing East and South. Perfect for a quiet evening for 2 or a cocktail party for 20. The well-equipped, windowed gourmet kitchen is every chefs delight.

The secondary bedroom is the size of most primary bedrooms. The primary bedroom has an en-suite bath. Both baths are of spa quality.  

Additional features include wood floors throughout, extensive lighting, custom millwork, central a/c and ample closets.

Located in the coveted Cannon Point South co-op, enjoy a grand lobby, gym, roof deck, parking, full-time doorman and live-in resident manager.  Sutton Place South is one of the city’s best kept secrets with quiet, tree-lined blocks, neighborhood resultants and the newly completed East River Pathway.
Maintenance includes electricity and gas. Pieds-à-terre's and in-unit washer-dryers permitted with board approval. Sorry, no dogs. 2% flip tax, paid by buyer.
View More

Building Features 20 Floors278 Units

elevator
full time doorman
garage
gym
laundry
parking
pet friendly
roofdeck
storage

Unit Features

dishwasher
washerdryer
garage
Exposures: East, South
Pet Policy: No Dogs

$1,795,000

$200,000  -  37 days ago

Listed on Mar 05, 2026

75 Days on Market

2 Beds / 2 Baths - / - ft²

Total Monthly Expenses: $6,025

Exclusively listed with: Compass Source: RLS

Martin N Eiden

[email protected]

917.701.8898

Listing Courtesy of Compass View Listing

Unit listing history

Date Status Amount Listed by
Loading History...

Similar Listings for Sale

45 SUTTON PLACE SOUTH - Unit 11K

Sutton Place / COOP

$1,750,000

On market for $1,750,000

-7.65% from ask / 177 days on market

Monthly Expenses: $5,228

2 beds - 2.0 baths / 1550 ft²

25 SUTTON PLACE SOUTH - Unit 9N

Sutton Place / COOP

$1,725,000

On market for $1,725,000

97.14% above ask / 41 days on market

Monthly Expenses: $4,414

2 beds - 2.0 baths / 0 ft²

25 SUTTON PLACE SOUTH - Unit 5M

Sutton Place / COOP

$1,875,000

On market for $1,875,000

0% from ask / 12 days on market

Monthly Expenses: $4,284

2 beds - 2.0 baths / 0 ft²

245 E 54 ST - Unit 8LM

Sutton Place / COOP

$1,675,000

On market for $1,675,000

-10.67% from ask / 88 days on market

Monthly Expenses: $3,418

2 beds - 2.0 baths / 0 ft²

425 E 58 ST - Unit 25B

Sutton Place / COOP

$1,675,000

On market for $1,675,000

0% from ask / 103 days on market

Monthly Expenses: $3,886

2 beds - 2.0 baths / 1800 ft²

300 E 54 ST - Unit 19DE

Sutton Place / COOP

$1,925,000

On market for $1,925,000

0% from ask / 46 days on market

Monthly Expenses: $3,478

2 beds - 2.0 baths / 0 ft²

303 E 57 ST - Unit 25GH

Sutton Place / COOP

$1,650,000

On market for $1,650,000

-2.65% from ask / 21 days on market

Monthly Expenses: $8,169

2 beds - 2.0 baths / 2400 ft²

200 E 57 ST - Unit 17A

Sutton Place / COOP

$1,650,000

On market for $1,650,000

0% from ask / 50 days on market

Monthly Expenses: $4,313

2 beds - 2.0 baths / 0 ft²

45 SUTTON PLACE SOUTH - Unit PHI

Sutton Place / COOP

$2,200,000

On market for $2,200,000

0% from ask / 61 days on market

Monthly Expenses: $4,200

2 beds - 2.0 baths / 0 ft²

45 SUTTON PLACE SOUTH - Unit 12I

Sutton Place / COOP

$1,625,000

On market for $1,625,000

0% from ask / 4 days on market

Monthly Expenses: $3,962

2 beds - 2.0 baths / 0 ft²

45 SUTTON PLACE SOUTH - Unit 10H

Sutton Place / COOP

$2,150,000

On market for $2,150,000

0% from ask / 133 days on market

Monthly Expenses: $4,251

2 beds - 2.0 baths / 0 ft²

45 SUTTON PLACE SOUTH - Unit 1B

Sutton Place / COOP

$1,200,000

On market for $1,200,000

0% from ask / 55 days on market

Monthly Expenses: $3,300

2 beds - 2.0 baths / 0 ft²