Description

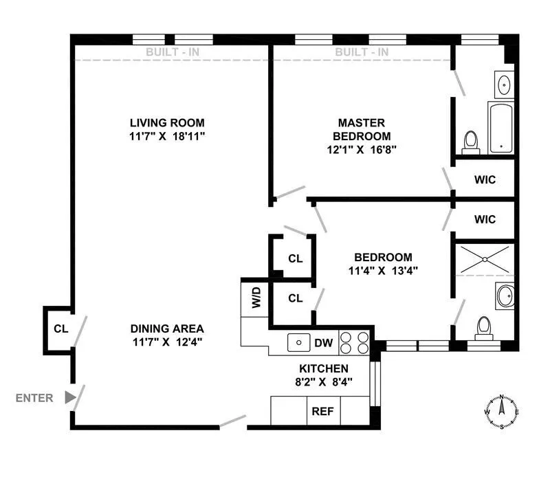
This is a unique two bedrooms, 2 baths, 1,113 sq. ft. condo apt in a doorman building, centrally located with choice surroundings of a culturally rich neighborhood and part of the Upper West Side & Central Park West historic district. From the entry foyer, there is the living room with a dining area, the large-sized two bedrooms have excellent closet space and two large baths. The apartment has five (5) large closets, a bike room, storage, laundry, and a live-in super. This apartment is spaciously proportioned, with impressive ceilings, inlaid parquet floors, and oversized windows that complement the kitchen. W/D is available in the basement; for a W/D in the unit, the new owner is encouraged to apply for board approval.
The building features bike storage and a laundry room. This is a pet-friendly building with easy access to transportation and fun shopping.
View More

Building Features 16 Floors80 Units

elevator
full time doorman
pet friendly
laundry

Unit Features

Exposures: North
Pet Policy: Building Yes, Yes

$1,390,000 / $1,248 per ft²

Listed on May 21, 2025

340 Days on Market

2 Beds / 2 Baths - / 1,113 ft²

Total Monthly expenses: $3,067

Maintenance: $1,960 / R.E. Taxes $1,107

Exclusively listed with: Keller Williams NYC Source: RLS

Maria L Ellis

[email protected]

973-216-4181

Listing Courtesy of Keller Williams NYC

Unit listing history

Date Status Amount Listed by
Loading History...

Similar Listings for Sale

500 W END AVE - Unit 6E

Upper West Side / CONDO

$1,745,000

On market for $1,745,000

0% from ask / 45 days on market

Monthly Expenses: $2,862

2 beds - 2.0 baths / 1216 ft²