Description

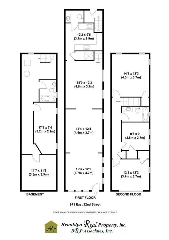
Welcome to this beautifully maintained Colonial one-family home in the heart of Midwood. Featuring 3 spacious bedrooms and 3 full bathrooms — with a bathroom conveniently located on each floor — this home offers exceptional comfort and practicality for today’s lifestyle. All bathrooms have been recently remodeled, offering a fresh, modern feel throughout. The main level includes a bright living room, a formal dining room perfect for gatherings, and a separate kitchen with ample storage and workspace.

Enjoy the added convenience of a shared driveway, garage parking, and a private backyard ideal for relaxation or entertaining. Solar panels are already installed, helping reduce utility costs and increase energy efficiency. Move right in and start enjoying everything this wonderful Midwood home has to offer.

Living in Midwood means enjoying a welcoming residential community known for its tree-lined streets, excellent neighborhood amenities, close proximity to quality schools, diverse dining options, houses of worship, and convenient access to public transportation and major roadways — offering both tranquility and easy city connectivity.
View More

Building Features 2 Floors1 Units

intercom

$800,000 / $627 per ft²

Listed on Jan 08, 2026

102 Days on Market

3 Beds / 1 Bath - / 1,274 ft²

Total Monthly expenses: $400

Maintenance: - / R.E. Taxes $400

Other Details:

Single Family

Lot Size: 20.0' x 100.0' Built: 13.0' x 49.0'

Zoning: A0-9

Exclusively listed with: Brooklyn Real Property, Inc Source: Brooklyn MLS

Timothy Brathwaite

[email protected]

(929) 288-7472

Listing Courtesy of Brooklyn Real Property, Inc

Unit listing history

Date Status Amount Listed by
Loading History...