Description

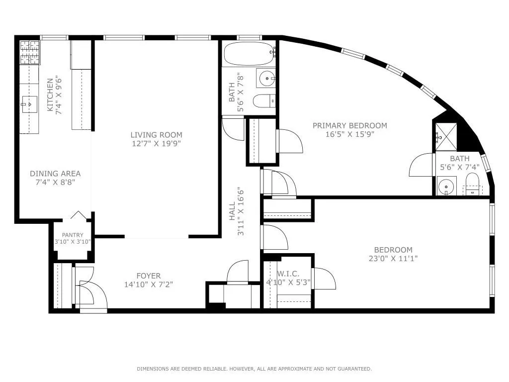
Enter through уour private landing into a sun-filled, expansive 1,200 sq ft residence with beautiful views of the harbor, bridge, and treetops. A gracious entry foyer opens into a bright, open-concept layout where the renovated kitchen, dining, and living areas flow seamlesslyideal for both relaxing and entertaining. The updated kitchen features stainless steel appliances, granite countertops, new cabinetry, recessed lighting, and a walk-in pantry. Two king-sized bedrooms include a primary suite with en-suite bath and a curved wall of windows offering panoramic harbor views, while the second bedroom also enjoys water views and a walk-in closet. Additional highlights include high ceilings, crown moldings, hardwood floors with inlaid trim, new doors, recessed lighting, a renovated primary bathroom, and six closets, including three walk-ins. Located in the sought-after Normandy co-op with a live-in super, laundry, storage and bike rooms, pet-friendly policies, and parking via waitlist. Express buses are nearby, and Shore Road Park offers recreation, while Bay Ridges dining, markets, and summer strolls enhance the lifestyle. Offers with financial profile and pre-approval.





View More

Building Features 6 Floors55 Units

elevator
intercom
bike room
laundry
parking
pet friendly
storage

Unit Features

dishwasher, microwave
washerdryer
Pet Policy: Building Yes, Yes

$689,000 / $574 per ft²

Listed on Dec 18, 2025

145 Days on Market

2 Beds / 2 Baths - / 1,200 ft²

Total Monthly Expenses: $1,715

Exclusively listed with: RE Max Edge Group Source: RLS

Marilee Pettet

[email protected]

(718) 612-3088

Listing Courtesy of RE Max Edge Group View Listing

Unit listing history

Date Status Amount Listed by
Loading History...