Description

A Landmark in the Sky: The Footbridge Μansion at 9 Jaу Street
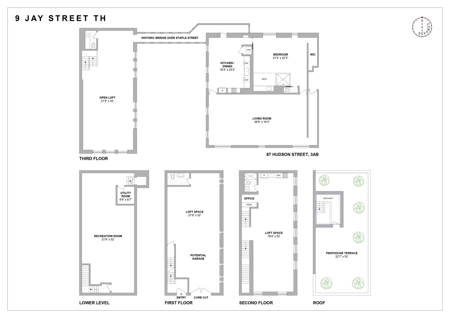
Νestled in the heart of Tribeca’s historic northwest district, 9 Jay Street is one of downtown Manhattan’s most iconic and architecturally significant private residences. Spanning two interconnected buildings — including a 4-story mansion and a sprawling loft — this extraordinary offering is unified by Tribeca’s famed Staple Street skybridge, a rare and cinematic architectural element suspended above cobblestone streets. With over 8,300 square feet of interior space, a 3-car garage, and more than 4,000 square feet of air rights, this is a legacy property offering unparalleled flexibility, provenance, and scale.
Rich in history, the property once housed the studio and private residence of a globally recognized fashion designer, and it remains a canvas for the next visionary owner. The entire structure benefits from brilliant natural light from all directions — south, west, east, and north — with captivating views over Duane Park, the surrounding landmarked facades, and the downtown skyline.
The journey begins inside 9 Jay Street, a 25-foot-wide, four-story mansion featuring a private garage with dual curb cuts, a full-height basement, and a beautifully scaled rooftop terrace spanning 1,200 square feet. With soaring 11-foot ceilings, exposed brick, and panoramic views from over 50 windows, this home is the pillar of Tribeca living. Currently measuring approximately 6,000 square feet, the mansion offers a stunning foundation for reimagining a dream home, showroom, gallery, or creative headquarters. A seamless transition across the private skybridge leads to 67 Hudson Street, a condominium where a private elevator opens into an expansive, sun-drenched corner loft of approximately 2,300 square feet.
Positioned just moments from Hudson River Park, the Tribeca Film Center, Washington Market Park, and a collection of the city’s most celebrated restaurants, 9 Jay Street captures the essence of downtown New York while offering privacy, scale, and story. Opportunities of this caliber — with architectural pedigree, private parking, and such an iconic feature as the Staple Street footbridge — rarely come to market. This is more than a home; it’s a defining piece of New York history and a chance to shape its next chapter.
Monthly common charges for the condo portion at 67 Hudson St are $1,797.12.
View More

Building Features 3 Floors1 Units

intercom

Unit Features

washerdryer
Pet Policy: Building No, No

$29,995,000 / $3,671 per ft²

Listed on Nov 14, 2025

196 Days on Market

1 Bed / 4 Baths - / 8,170 ft²

Total Monthly expenses: $8,569

Maintenance: $1,797 / R.E. Taxes $8,569

Other Details:

Single Family

Lot Size: 25.42' x 53.67' Built: 25.0' x 53.0'

Zoning: A0-9

Exclusively listed with: Compass Source: RLS

Clayton Thomas
Orrigo

[email protected]

(212) 960-3306

Stephen
Ferrara

[email protected]

(646) 761-3592

Listing Courtesy of Compass View Listing

Unit listing history

Date Status Amount Listed by
Loading History...

Similar Listings for Sale

152 READE ST - Unit HOUSE

TriBeCa / TOWNHOUSE

$15,750,000

On market for $15,750,000

-5.97% from ask / 164 days on market

Monthly Expenses: $0

5 beds - 5.0 baths / 8040 ft²