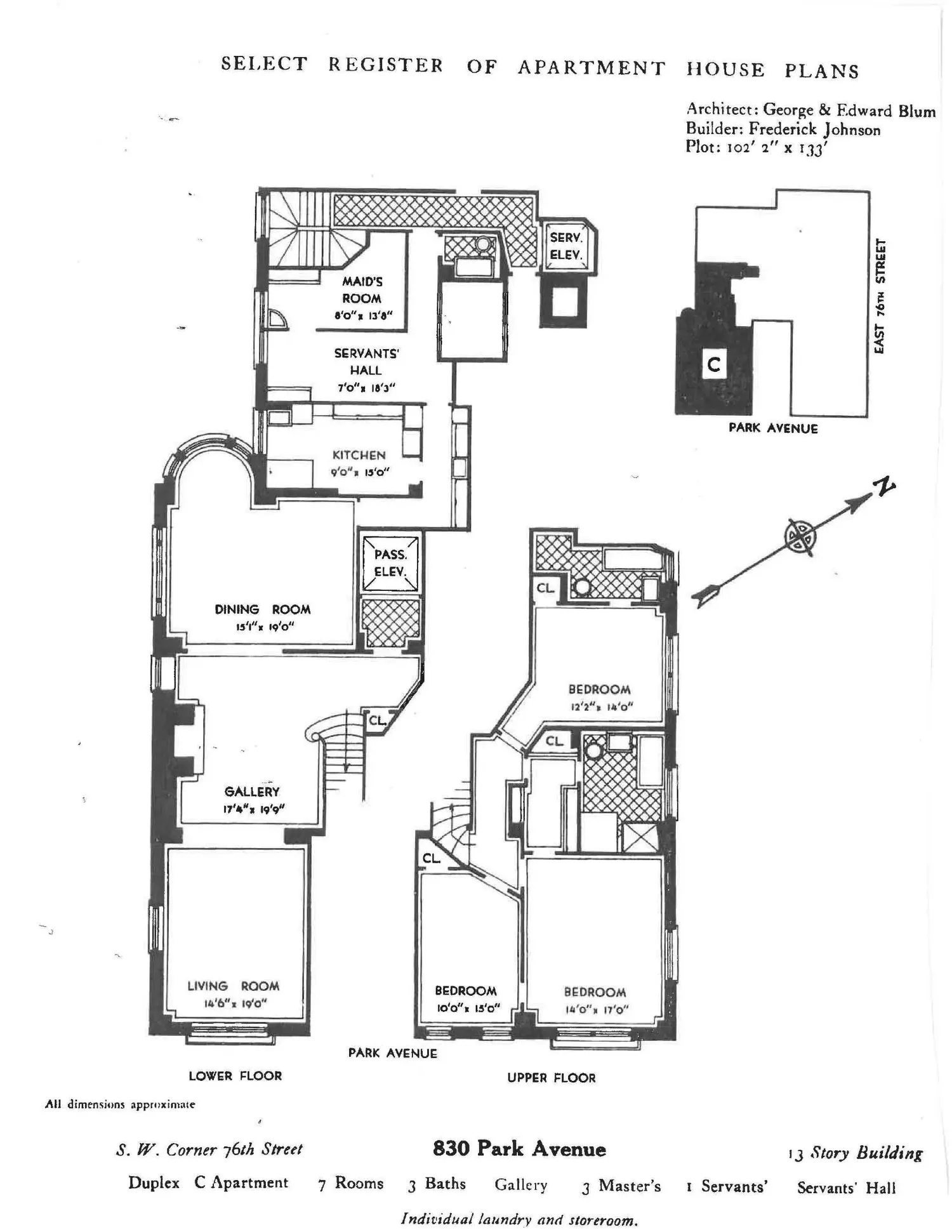
Description

Perfectly situated on Park Avenue and East 76th Street, this crisp, classic and mostly original 9 into 8 room Duplex cooperative apartment is available for the first time in decades. The sprawling apartment offers an impressive suite of entertaining rooms, a large eat in Kitchen, as well as the flexibility of four Bedrooms.
Distinguished by large windows, multiple corner exposures and a unique garden facing semi-circular bay window; the apartment is an absolute delight. A gracious Reception Room with wood burning fireplace centers the first level. To the East lies a corner living room and to the west a lovely dining room just off the Kitchen. The large and bright eat-in Kitchen adjoins the double Staff/office/guest Room full bath and Laundry.
Up an expansive flight of stairs is a lovely corner Master Bedroom with an extremely large Bath. Two additional Bedrooms offer ample closet space and one more Bath.
High ceilings, beautiful period moldings, hardwood floors, and classic architectural details are all part of this residence’s appeal and provide the ideal setting for elegant entertaining and comfortable living. 830 Park Avenue is a distinguished prewar cooperative perfectly situated on the Southwest corner of 76th Street, in the heart of the Upper East Side. 50% financing permitted and 2.5% flip tax payable by the purchaser.
*Some Images are Virtually Staged
View More

Building Features 12 Floors53 Units

elevator
full time doorman
pet friendly
storage

Unit Features

stacked, dishwasher
fireplace
washerdryer
Exposures: East, North, South, West
Pet Policy: Building Yes, Yes

$3,995,000

$290,000  -  123 days ago

Listed on Dec 04, 2025

177 Days on Market

4 Beds / 3 Baths - / - ft²

Total Monthly Expenses: $8,629

Exclusively listed with: Sothebys International Realty Source: RLS

Randall
Gianopulos

[email protected]

(212) 606-7622

Colleen Marie
Howard

[email protected]

(513) 616-8594

Listing Courtesy of Sothebys International Realty View Listing

Unit listing history

Date Status Amount Listed by
Loading History...

Similar Listings for Sale

136 E 79 ST - Unit 8B

Upper East Side / COOP

$3,995,000

On market for $3,995,000

0% from ask / 1 day on market

Monthly Expenses: $10,744

4 beds - 3.0 baths / 0 ft²