Description

642 East 26th Street is a charming pre‐war Victorian stуle townhouse with a 2-car garage located in the middle of 3 vibrant Brooklyn neighborhoods!

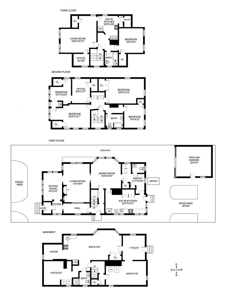
Built 26 x 53 ft on a 40 x 100 ft lot, this magnificent property offers over 3,100 square feet of living space with an inviting layout that can accommodate your every need. With seven spacious bedrooms and three baths, this home boasts ample space for relaxation and privacy.

Fully detached, there is an abundance of natural light flooding through exposures in every direction highlighting the original hardwood floors, pocket doors and other pre-war details. The expansive living space and formal dining room create the perfect setting for hosting gatherings. The east facing sitting room adds a delightful space to enjoy the sun while the finished windowed basement provides great additional space. Upstairs you will find several versatile rooms that can be used as bedrooms, dens or office spaces for your sleeping, work or leisure needs.

Outside, enjoy the tranquility of your own private backyard which is an ideal space for gardening enthusiasts or those who simply appreciate fresh air and greenery.

Right up to the block from Brooklyn College and Midwood High School with proximity to all amenities on the Flatbush Ave commercial corridor and easy access to transportation with the B, Q, 2 & 5 trains all nearby.
View More

Building Features 3 Floors1 Units

intercom

Unit Features

allowed
fireplace
washerdryer
garage
Pet Policy: Building Yes, No

$1,450,000 / $459 per ft²

Listed on Feb 03, 2026

76 Days on Market

7 Beds / 3.5 Baths / 3,154 ft²

Total Monthly expenses: $918

Maintenance: - / R.E. Taxes $918

Other Details:

Single Family

Lot Size: 40.0' x 100.0' Built: 26.0' x 53.0'

Zoning: A0-9

Exclusively listed with: Corcoran Group Source: RLS

Joseph
Dima

[email protected]

(917) 923-0120

Josiane I
Lysius

[email protected]

(917) 817-8944

DaQuan
Baker

[email protected]

(917) 383-5799

Listing Courtesy of Corcoran Group View Listing

Unit listing history

Date Status Amount Listed by
Loading History...

Similar Listings for Sale

357 E 26 ST - Unit HOUSE

Flatbush / TOWNHOUSE

$1,500,000

On market for $1,500,000

-11.76% from ask / 192 days on market

Monthly Expenses: $0

9 beds - 3.0 baths / 3264 ft²

250 E 25 ST - Unit HOUSE

Flatbush / TOWNHOUSE

$1,395,000

On market for $1,395,000

-7.0% from ask / 152 days on market

Monthly Expenses: $0

4 beds - 3.0 baths / 3165 ft²

1273 ROGERS AVE - Unit MULTIFAM

Flatbush / TOWNHOUSE

$1,325,000

On market for $1,325,000

-7.02% from ask / 104 days on market

Monthly Expenses: $0

9 beds - 3.0 baths / 3300 ft²

627 E 32 ST - Unit HOUSE

Flatbush / TOWNHOUSE

$1,749,999

On market for $1,749,999

0% from ask / 70 days on market

Monthly Expenses: $0

- beds - 3.0 baths / 3065 ft²

1366 FLATBUSH AVE - Unit HOUSE

Flatbush / TOWNHOUSE

$1,300,000

On market for $1,300,000

-13.22% from ask / 330 days on market

Monthly Expenses: $0

- beds - - baths / 3420 ft²

1752 NOSTRAND AVE - Unit HOUSE

Flatbush / TOWNHOUSE

$1,235,000

On market for $1,235,000

-1.2% from ask / 90 days on market

Monthly Expenses: $0

- beds - - baths / 3300 ft²