Description
Life at the Τop of Τhe Verona | 32 Εast 64th Street
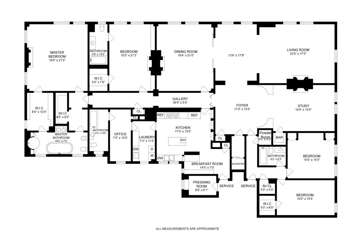
Perched high atop The Verona, one of the Upper East Side’s most distinguished cooperatives, this grand and recently renovated eleven-room residence offers refined living with luminous, open views to the west, north, and south. Graced with soaring ceilings, expansive windows, and exquisite custom millwork, every space reflects timeless elegance enhanced by modern updates and impeccable craftsmanship.
A private elevator landing opens to a gracious central foyer, leading to a magnificent suite of entertaining rooms — the living room, dining room, and library/drawing room — arranged enfilade and overlooking Madison Avenue and Central Park beyond. Each features a wood-burning fireplace and refined detailing that balances prewar grandeur with contemporary comfort. Completing the public spaces is an inviting library with a bar and its own fireplace — the perfect retreat for quiet evenings or intimate gatherings.
The custom, newly renovated chef’s kitchen is beautifully appointed with top-of-the-line appliances, including a Subzero refrigerator, vented Viking range, under-counter ice maker and freezer, wine cella and a charming breakfast area ideal for casual dining.
The serene primary suite offers a wood-burning fireplace, dual walk-in closets, and a sumptuous, newly reimagined marble bath featuring double sinks, a deep soaking tub, and a remarkable circular shower. A secondary bedroom with en suite bath and fireplace, along with two additional bedrooms (or three, if desired), a laundry room, and a staff room with bath complete this exceptional home.
Ideally situated just one block from Central Park, The Verona stands as a hallmark of architectural distinction and timeless New York prestige — now offering the rare opportunity to enjoy prewar elegance with the sophistication of a modern renovation.
40% financing permitted. 2% flip tax payable by the buyer. Assessment until January 2027 $2,139.
View More
Perched high atop The Verona, one of the Upper East Side’s most distinguished cooperatives, this grand and recently renovated eleven-room residence offers refined living with luminous, open views to the west, north, and south. Graced with soaring ceilings, expansive windows, and exquisite custom millwork, every space reflects timeless elegance enhanced by modern updates and impeccable craftsmanship.
A private elevator landing opens to a gracious central foyer, leading to a magnificent suite of entertaining rooms — the living room, dining room, and library/drawing room — arranged enfilade and overlooking Madison Avenue and Central Park beyond. Each features a wood-burning fireplace and refined detailing that balances prewar grandeur with contemporary comfort. Completing the public spaces is an inviting library with a bar and its own fireplace — the perfect retreat for quiet evenings or intimate gatherings.
The custom, newly renovated chef’s kitchen is beautifully appointed with top-of-the-line appliances, including a Subzero refrigerator, vented Viking range, under-counter ice maker and freezer, wine cella and a charming breakfast area ideal for casual dining.
The serene primary suite offers a wood-burning fireplace, dual walk-in closets, and a sumptuous, newly reimagined marble bath featuring double sinks, a deep soaking tub, and a remarkable circular shower. A secondary bedroom with en suite bath and fireplace, along with two additional bedrooms (or three, if desired), a laundry room, and a staff room with bath complete this exceptional home.
Ideally situated just one block from Central Park, The Verona stands as a hallmark of architectural distinction and timeless New York prestige — now offering the rare opportunity to enjoy prewar elegance with the sophistication of a modern renovation.
40% financing permitted. 2% flip tax payable by the buyer. Assessment until January 2027 $2,139.
Building Features 10 Floors27 Units
elevator
full time doorman
pet friendly
Unit Features
fireplace
washerdryer
Exposures: North, South, West
Pet Policy: Building Yes, Yes
$15,250,000
$250,000 - 63 days agoListed on Oct 23, 2025
193 Days on Market
5 Beds / 4.5 Baths / - ft²
Total Monthly Expenses: $15,173
Exclusively listed with: Keller Williams NYC Source: RLS
Listing Courtesy of Keller Williams NYC
View Listing
Unit listing history
| Date | Status | Amount | Listed by | ||
|---|---|---|---|---|---|
| Loading History... | |||||