Description

Α Rare Chelsea Full Floor Open Loft with Yard

Ρrice Reduced!

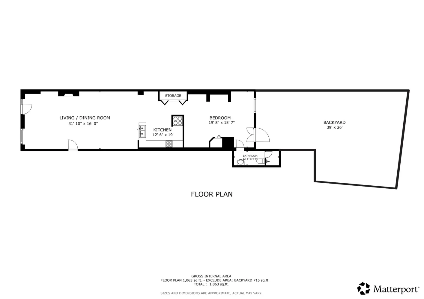
Welcome to your dream home in the heart of Chelsea-a spacious 1,040 sq. ft. floor-through residence offering the ultimate balance of city energy and private retreat. This rare find includes an expansive 350 sq. ft. rear yard-a tranquil sanctuary perfect for morning coffee, entertaining friends, or simply unwinding under the open sky.

Step outside your door into one of Manhattan's most dynamic neighborhoods. Just adjacent to the fashionable Meatpacking District, you'll be surrounded by hundreds of art galleries, world-class dining, and vibrant nightlife. Stroll the iconic High Line, explore boutique shops, or take in the rich architectural mix of historic townhouses and sleek modern towers that define Chelsea's character.

This apartment offers not just a place to live, but a lifestyle immersed in culture, convenience, and charm. With generous space indoors and an outdoor haven, it's a rare opportunity to enjoy both the pulse of the city and the calm of your own retreat.

Easy to show. Visit it soon!

View More

Building Features 5 Floors- Units

intercom

Unit Features

allowed
fireplace
washerdryer
Pet Policy: Building Yes, No

$999,000

$171,000  -  43 days ago

Listed on Sep 20, 2025

206 Days on Market

1 Bed / 1 Bath - / - ft²

Total Monthly Expenses: $2,283

Exclusively listed with: Douglas Elliman Real Estate Source: RLS

Marguerite L Martin

[email protected]

(212) 475-5750

Listing Courtesy of Douglas Elliman Real Estate View Listing

Unit listing history

Date Status Amount Listed by
Loading History...

Similar Listings for Sale

356 W 23 ST - Unit 3A

Chelsea / COOP

$830,000

On market for $830,000

0% from ask / 89 days on market

Monthly Expenses: $1,279

1 bed - 1 bath / 0 ft²

410 W 25 ST - Unit 2B

Chelsea / COOP

$700,000

On market for $700,000

0% from ask / 27 days on market

Monthly Expenses: $1,707

1 bed - 1 bath / 0 ft²

458 W 23 ST - Unit 3A

Chelsea / COOP

$699,000

On market for $699,000

0% from ask / 27 days on market

Monthly Expenses: $1,415

1 bed - 1 bath / 0 ft²

335 W 21 ST - Unit F/E

Chelsea / COOP

$695,000

On market for $695,000

-12.58% from ask / 232 days on market

Monthly Expenses: $1,993

1 bed - 1 bath / 0 ft²

460 W 23 ST - Unit 4B

Chelsea / COOP

$650,000

On market for $650,000

0% from ask / 86 days on market

Monthly Expenses: $1,415

1 bed - 1 bath / 0 ft²

234 W 16 ST - Unit 5A

Chelsea / COOP

$585,000

On market for $585,000

0% from ask / 33 days on market

Monthly Expenses: $1,537

1 bed - 1 bath / 0 ft²

264 W 22 ST - Unit 14

Chelsea / COOP

$500,000

On market for $500,000

0% from ask / 27 days on market

Monthly Expenses: $1,440

1 bed - 1 bath / 0 ft²