Description

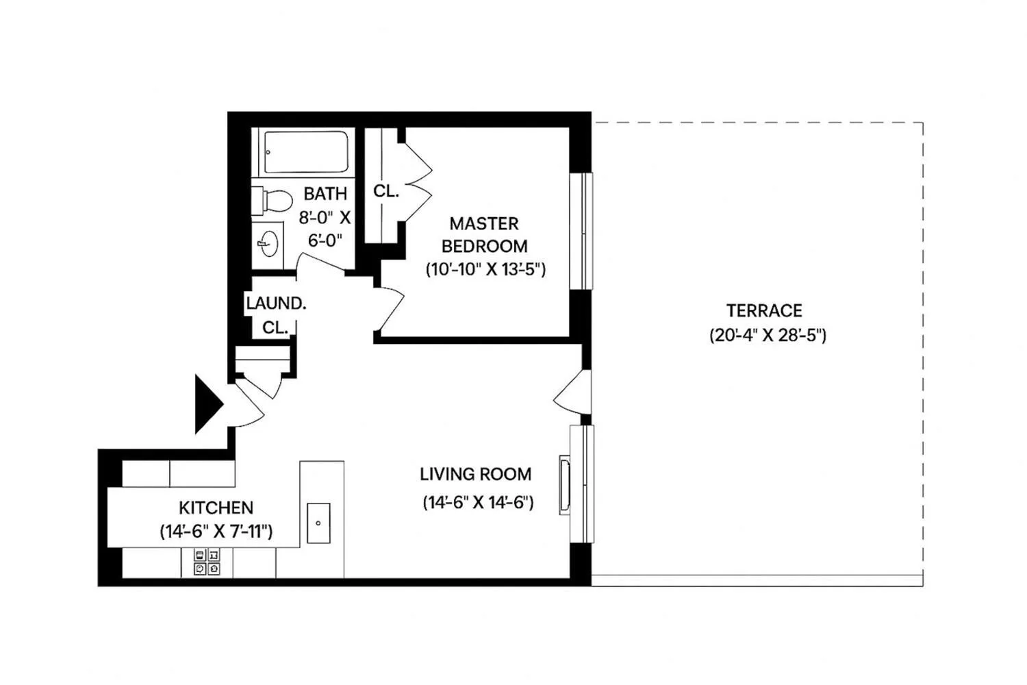
PARKΙNG, SΤORAGΕ, TWO BΙΚE RACKS INCᏞUDΕD. Welcome home to this rarely available, sun-filled one-bedroom condominium featuring a private 540 sq ft terrace, deeded parking, and private storage in prime South Williamsburg.

Recently and thoughtfully renovated, the residence boasts 6-inch wide-plank wood flooring, new custom lighting, refinished kitchen cabinetry.

The open chef's kitchen is anchored by a quartz-topped island and equipped with stainless steel appliances, a custom-built pantry, and abundant cabinet storage-ideal for cooking and entertaining. The 540 sq ft private terrace offers an unparalleled outdoor living experience with newly retiled flooring and ample space for lounging, dining, and gardening.

Residents also enjoy access to a newly redesigned common roof deck, complete with a Viking grill, elegant landscaping, outdoor lounge areas, and panoramic views of Downtown Manhattan and DUMBO-a perfect setting for hosting and relaxing.

Included in the sale are:
Deeded parking space
Private storage cage
Wine storage
Two dedicated bike racks
Resident gym

Located just moments from the Williamsburg waterfront and Domino Park, the home offers unbeatable access to outdoor recreation, culture, and green space. Transportation is a breeze with the NYC Ferry and J/M/Z trains nearby. The neighborhood is also home to some of the city's most notable dining and shopping destinations, including Peter Luger, Sea Wolf, Laser Wolf, and many more.

This is a truly exceptional opportunity to own a turnkey home with outdoor space, parking, and amenities in one of Brooklyn's most desirable neighborhoods.

Currently there is an assessment of $560.52 monthly.
View More

Building Features 7 Floors32 Units

elevator
intercom

Unit Features

allowed
terrace
garden
washerdryer
Exposures: South
Pet Policy: Building Yes, No

$1,123,000 / $1,561 per ft²

$26,000  -  26 days ago

Listed on Oct 07, 2025

208 Days on Market

1 Bed / 1 Bath - / 719 ft²

Total Monthly expenses: $1,243

Maintenance: $1,218 / R.E. Taxes $25

Exclusively listed with: Corcoran Group Source: RLS

Geo Punnapuzha

[email protected]

(917) 642-1024

Listing Courtesy of Corcoran Group View Listing

Unit listing history

Date Status Amount Listed by
Loading History...

Similar Listings for Sale

26 BROADWAY - Unit 704

Williamsburg / CONDO

$1,050,000

On market for $1,050,000

-4.55% from ask / 52 days on market

Monthly Expenses: $1,031

1 bed - 1 bath / 719 ft²

214 N 11 ST - Unit 5A

Williamsburg / CONDO

$1,300,000

On market for $1,300,000

0% from ask / 26 days on market

Monthly Expenses: $2,031

1 bed - 1 bath / 832 ft²