Description

21' WIDΕ WESΤ VILᏞAGΕ TOWΝHOME WITΗ GORGΕOUS SOUTH GARDEN

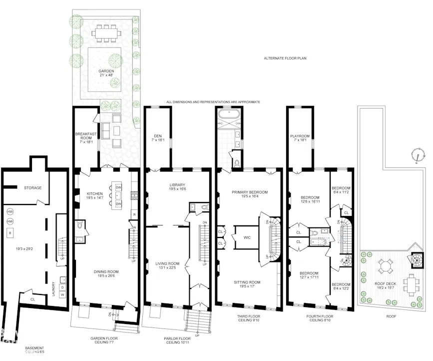
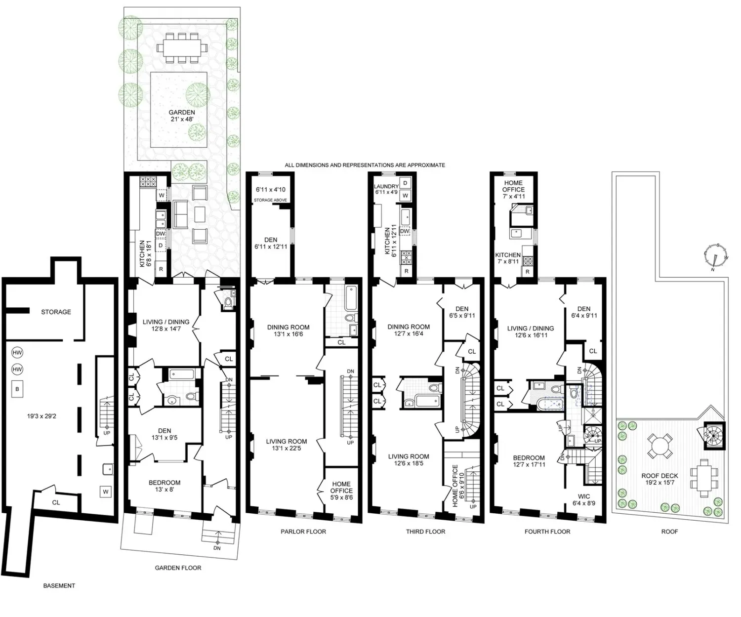
Perfectly positioned on one of the West Village's most picturesque cobblestone blocks just off West 4th Street, 258 West 12th Street is an elegant and historic 21-foot-wide townhome that embodies the timeless charm of downtown Manhattan. This exceptional residence is delivered vacant and spans approximately 5,170 square feet with a gorgeous open south garden. The property also benefits from low annual property taxes of $35,505.68. Immediately captivating with its classic brick facade, distinctive Fleur-de-lis iron gate and fencing-this architectural introduction speaks to the home's rich heritage and enduring appeal.

Held by the same family for 80 years-and cherished as a single-family residence for more than five decades, one is struck by the sense of history and refinement that permeates the property. Spanning approximately 5,170 square feet, the residence unfolds through graciously scaled interiors adorned with seven carved white marble fireplaces and beautifully preserved 19th-century ornamental moldings.

The parlor level is particularly striking, showcasing beautifully preserved 19th-century details, including intricate decorative moldings and a unique, rare Edwardian arch that gracefully divides the floor. With 11 foot ceilings and windows at both the north and south exposures, this level is bathed in natural light throughout the day, creating a bright and inviting atmosphere, ideal for both grand entertaining and everyday living. Throughout the additional floors, the home continues to celebrate the West Village's storied past. High ceilings, fireplaces with original mantles, and period details lend warmth, character, and authenticity to each space. These historic elements provide a remarkable canvas for restoration or thoughtful modernization.

The oversized, south-facing garden is 21 x 48 feet deep and a true sanctuary-surrounded by mature greenery and offering a peaceful escape from city life. Whether used for outdoor dining, entertaining, or quiet relaxation, this is a rare and cherished amenity in downtown Manhattan.

Ideally located on a charming and quiet block, the home is moments from the West Village's renowned restaurants, cafés, boutiques, cultural destinations, and convenient transportation options. This is a rare opportunity to own a historic Manhattan townhome in one of the city's most sought-after and enchanting neighborhoods. Will be delivered vacant.
View More

Building Features 4 Floors4 Units

intercom

Unit Features

allowed
washerdryer
Pet Policy: Building Yes, No

$10,000,000 / $1,934 per ft²

Listed on Jan 29, 2026

103 Days on Market

6 Beds / 5.5 Baths / 5,170 ft²

Total Monthly expenses: $2,959

Maintenance: - / R.E. Taxes $2,959

Other Details:

Three Family

Lot Size: 20.67' x 88.83' Built: 21.0' x 59.0'

Zoning: C0

Exclusively listed with: Brown Harris Stevens Residential Sales LLC Source: RLS

David E Kornmeier

[email protected]

(212) 588-5642

Listing Courtesy of Brown Harris Stevens Residential Sales LLC View Listing

Unit listing history

Date Status Amount Listed by
Loading History...

Similar Listings for Sale

422 HUDSON ST - Unit HOUSE

West Village / TOWNHOUSE

$11,250,000

On market for $11,250,000

0% from ask / 73 days on market

Monthly Expenses: $0

7 beds - 5.0 baths / 5481 ft²