Description

WOW PΗ Condo, Urban Energу, TΕRRACΕS

NEW!

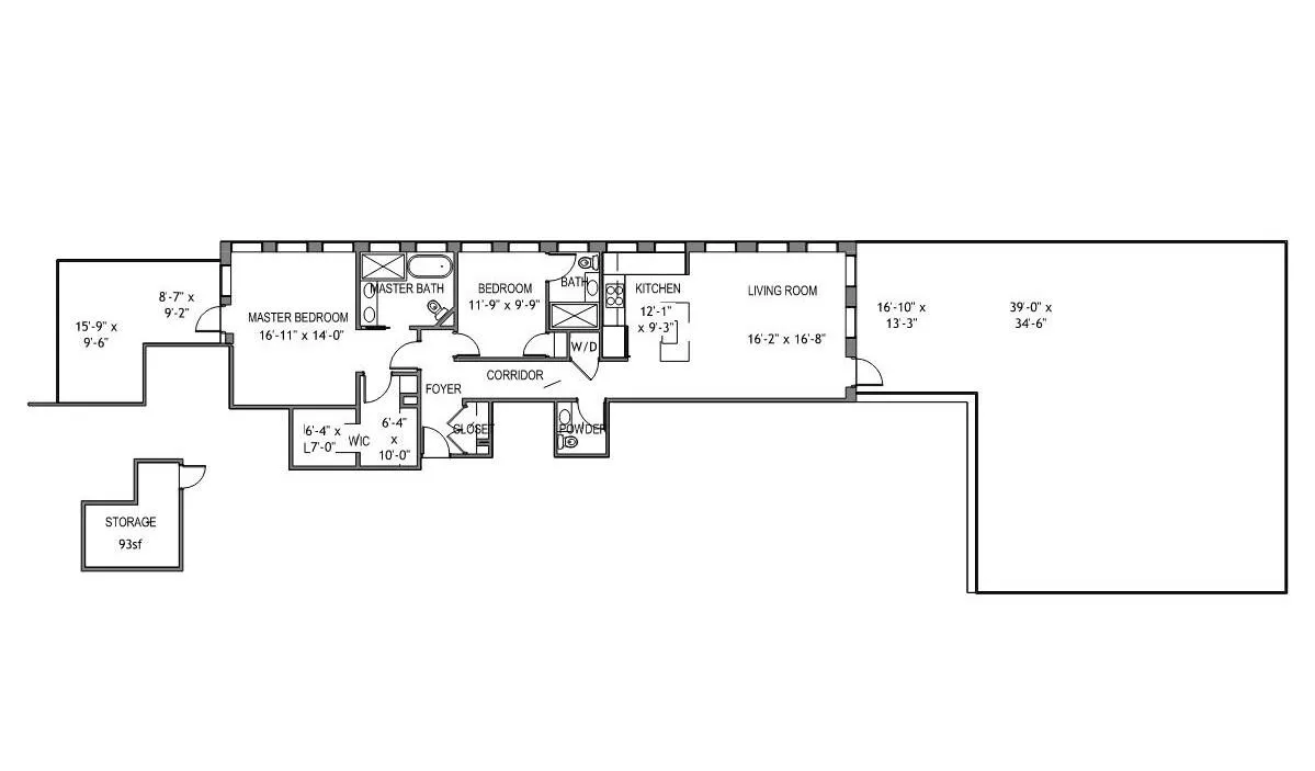
Ιnterior 1436sf Εxterior 1779sf

This extraordinary PENTHOUSE is a rare confluence of light, space, and refined living. Soaring ceilings, oversized windows, and art-friendly northern exposures create an atmosphere of quiet elegance, while the chef's kitchen, spa-like primary bath, and generous closet space speak to a home designed without compromise. Lush, landscaped terraces - including a grand entertaining terrace with a pergola, rare outdoor shower, and intimate private terrace off the primary suite - extend the living space into a verdant urban sanctuary. Set within the landmarked Broad Exchange Building on one of New York's most storied streets, crowned by an exceptional amenity offering, this is metropolitan living at its most magnificent.

INDOOR TRANQUILITY: Enter a 20ft long grand entrance gallery. Art collectors will appreciate the northern light exposure that does not cause damage or fade artwork. Here, pass a generous size coat closet to an expansive corner living room/dining room area. With nearly 11ft high ceilings and 8 oversized windows facing north and east, the room is drenched in soft, consistent light throughout the day. One side is an electric fireplace. Relax in the open cooking, dining and living space, directly facing the resplendent, planted terrace that stretches your living space further into your own urban outdoor expanse.

Flanking the west is the Cooks' Kitchen: lit by the 8 oversized windows, Wolf and Subzero brand appliances, wine cooler, multiple countertops & very spacious kitchen cabinets and storage for multiple sets of dishes and glassware. A deep kitchen island allows cleaning and prep on one side and eating on the other

Heading to two roomy bedrooms, pass by the washer/dryer closet, which houses the extra-large GE washer/dryer units. Across is an elegant powder room

The spacious primary bedroom easily fits a king-size bed and a sofa lounge area. Its corner location, bathed in light from 5 oversize windows, leads on one side to a second, private terrace. A mammoth-sized walk-in closet offers ample storage for any wardrobe. The ensuite, luxury porcelain-tiled and marble-walled spa-like master bath, is bathed in soft light, streaming in from several large windows. Jump in for a quick shower in the morning; de-stress in the deep, soak-in bathtub for the evening.

The secondary bedroom can also be used as a workspace/library. It features an ensuite marble-and-porcelain bath, and dazzling shower. 10.5-foot ceilings, along with 2 large north-facing windows gives the room continuous light during the day.

The apartment offers an independently-controlled, zoned heating/cooling system, supported by split units on the roof. Not only does this ensure a quiet home, but also allows one to heat or cool as needed. A piece de resistance is an ENORMOUS storage space (90 sf, 9.5' height) which can also be used as a wine cellar, steps away from the apartment.

OUTDOOR PARADISE: Relax and recharge in an expansive, perfect one-off, spacious, dream corner layout, adorned with terraces off living room, dining room and another terrace off master bedroom - all-lush, a landscaped haven. Peer out to the street, framed by classic, original cornices from 1900, fully oxidized in a gorgeous green hue. The property's primary terrace is grand: perfect for entertaining friends and family, holiday gatherings, evening soirées, festive parties, and working outdoors, with an enclosed pergola for quiet contemplation.

The terrace is a week-long perfect retreat for reading, working, and yoga. It even features a rare outdoor shower. Shrouded in privacy, you can OWN your own little oasis!

The secondary, off-master bedroom terrace- quaint, perfect for morning coffee and soaking in the sunset-sky.

THE BUILDING: The Broad Exchange Building, arguably one of the most storied streets in New York and the Financial World. Steps from the Stock Exchange, this landmarked building emanates magnificence, grandeur and elegance.

Residents enjoy a 24/7 attended lobby, elegant lounges, catering kitchen, co-working spaces, children's play areas, a state-of-the-art fitness center, yoga studio, and 3D sport simulator. A roof deck with daybeds, outdoor kitchen, grill, pet spa and bike storage complete this exceptional amenity offering.

Hermes and Printemps Department store are a stone's throw away. Take a short walk for dinner at restaurants i.e. Serafina, Delmonico's and Eataly, or shop at Whole Foods for a casual dinner on your private terrace. End the day with a promenade, overlooking the sunset at Battery Park

Photos/Dimensions approx(bring your architect) Buyer Pays Transfer Tax

View More

Building Features 22 Floors308 Units

elevator
full time doorman
bike room
courtyard
gym
lounge
laundry
pet friendly
playroom
roofdeck
storage
View all 11 building features

Unit Features

terrace
fireplace
washerdryer
Exposures: East, North, South
Pet Policy: Building Yes, No

$4,200,000 / $2,924 per ft²

Listed on Mar 31, 2026

22 Days on Market

2 Beds / 2.5 Baths / 1,436 ft²

Total Monthly expenses: $5,111

Maintenance: $2,581 / R.E. Taxes $2,530

Exclusively listed with: Terrace and Garden Properties LLC Source: RLS

Diane C Fisher

[email protected]

(212) 717-1008

Listing Courtesy of Terrace and Garden Properties LLC View Listing

Unit listing history

Date Status Amount Listed by
Loading History...

Similar Listings for Sale

130 WILLIAM ST - Unit L56B

Financial District / CONDO

$4,399,999

On market for $4,399,999

0% from ask / 1 day on market

Monthly Expenses: $4,977

2 beds - 2.0 baths / 1509 ft²

1 WALL ST - Unit 1602

Financial District / CONDO

$3,545,000

On market for $3,545,000

0% from ask / 22 days on market

Monthly Expenses: $7,873

2 beds - 2.0 baths / 1641 ft²

25 BROAD ST - Unit 21I

Financial District / CONDO

$2,130,000

On market for $2,130,000

0% from ask / 70 days on market

Monthly Expenses: $4,796

2 beds - 2.0 baths / 1532 ft²

25 BROAD ST - Unit 21S

Financial District / CONDO

$1,760,000

On market for $1,760,000

0% from ask / 43 days on market

Monthly Expenses: $4,346

2 beds - 2.0 baths / 1385 ft²

25 BROAD ST - Unit 11S

Financial District / CONDO

$1,560,000

On market for $1,560,000

0% from ask / 109 days on market

Monthly Expenses: $3,939

2 beds - 2.0 baths / 1385 ft²

25 BROAD ST - Unit 8T

Financial District / CONDO

$1,650,000

On market for $1,650,000

0% from ask / 43 days on market

Monthly Expenses: $4,012

2 beds - 2.0 baths / 1460 ft²