Description

Available for the first time, apartment 15AS is a true penthouse — two private terraces, sweeping architectural and river views, south and east exposures, and a flexible second bedroom/home office, all on the top floor.
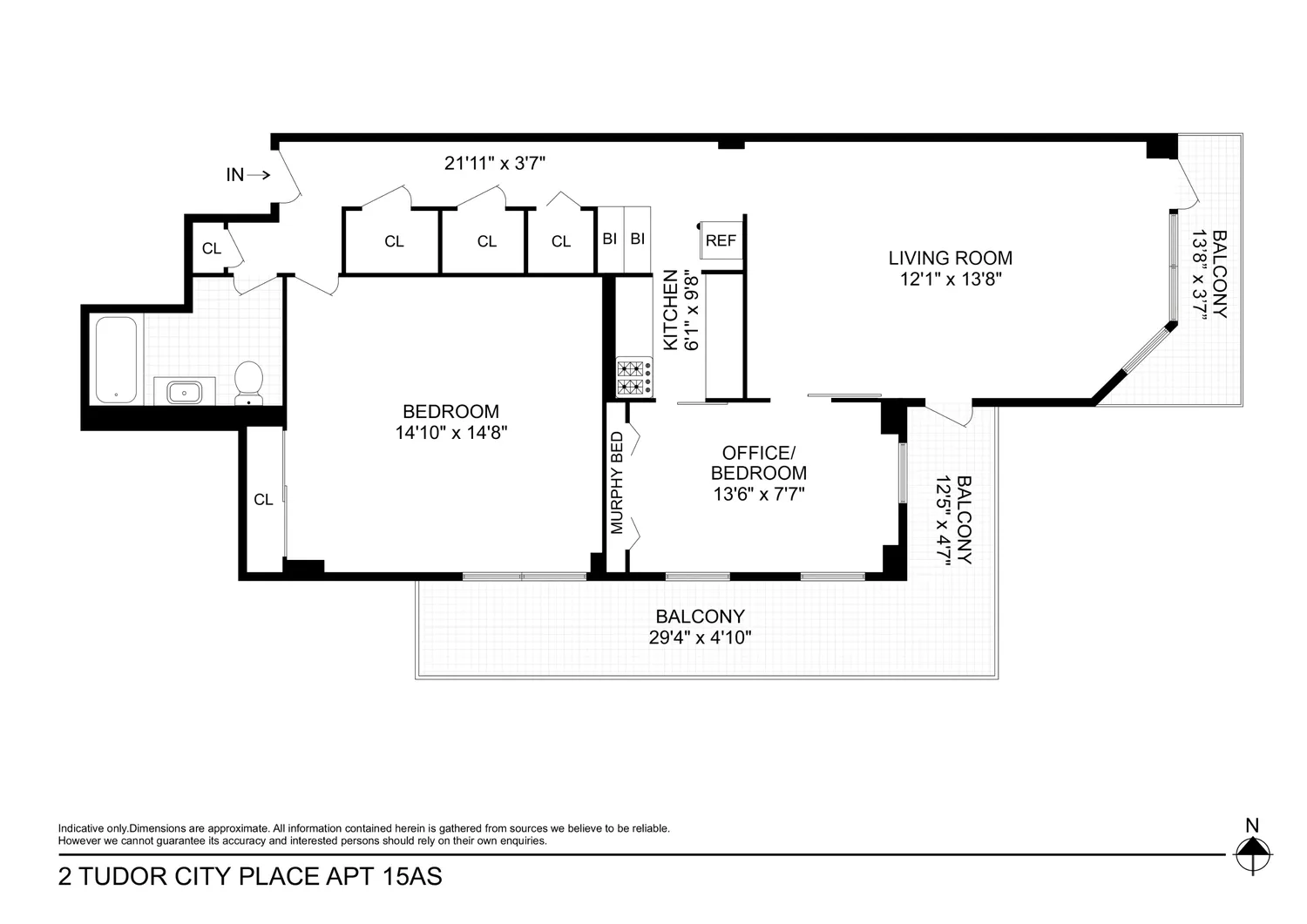
Enter through a proper gallery foyer lined with three deep closets. The living room opens onto breathtaking views and connects to both terraces, filling the space with natural light throughout the day. A bonus room off the living area functions equally well as a home office or second bedroom. The galley kitchen is clean and practical, with everything a home chef needs close at hand.
The primary bedroom sits at the opposite end of the apartment — quietly removed from the living areas — and includes a large closet. An oversized bathroom and linen closet round out this one-of-a-kind home.
A top-floor apartment with two terraces and river views, available for the first time. Opportunities like this don't come twice.
The low monthly maintenance of $2,904 includes all utilities. There is a monthly assessment of $240.95 in place until February 2027.
2 Tudor City Place is a full-service cooperative with a 24-hour doorman, resident manager, central laundry, resident storage rooms, bike storage, and a parking garage with direct access to the lobby. A fitness center located across the street is available to residents for discounted membership.
Located on a quiet, tree-lined cul-de-sac, the Landmarked Tudor City district offers two beautifully manicured parks, playgrounds, and charming neighborhood shops. Grand Central, the United Nations, fine dining, and Midtown shopping are all just minutes away. The building permits Pied-à-terres, gifting, co-purchasing, and up to 70% financing. The building's land lease has been extended to 2150. Please note that photos have been virtually staged.
View More

Building Features 14 Floors333 Units

elevator
full time doorman
bike room
courtyard
garage
gym
laundry
parking
pet friendly
roofdeck
storage
View all 11 building features

Unit Features

dishwasher, electriccooktop, electricoven, refrigerator
terrace
washerdryer
garage
Exposures: East, South
Pet Policy: , Building Pets Allowed
River View: true

$899,000

Listed on Apr 06, 2026

9 Days on Market

2 Beds / 1 Bath - / - ft²

Total Monthly Expenses: $2,903

Open House

Sun Apr 19, 1:00 PM - 3:00 PM
Fri Apr 17, 3:00 PM - 5:00 PM

Exclusively listed with: Compass Source: RLS

Patrick M
Anderson-Higgins

[email protected]

646-982-0353

Katherine Gallivan
Gallivan

[email protected]

(424) 744-0945

Listing Courtesy of Compass View Listing

Unit listing history

Date Status Amount Listed by
Loading History...

Similar Listings for Sale

137 E 36 ST - Unit 3G

Murray Hill / COOP

$850,000

On market for $850,000

0% from ask / 201 days on market

Monthly Expenses: $2,701

2 beds - 1 bath / 0 ft²

305 E 40 ST - Unit 11P

Murray Hill / COOP

$850,000

On market for $850,000

0% from ask / 22 days on market

Monthly Expenses: $2,476

2 beds - 1 bath / 0 ft²

305 E 40 ST - Unit 4J

Murray Hill / COOP

$949,000

On market for $949,000

0% from ask / 48 days on market

Monthly Expenses: $2,452

2 beds - 1 bath / 0 ft²

305 E 40 ST - Unit 11S

Murray Hill / COOP

$799,000

On market for $799,000

-3.15% from ask / 173 days on market

Monthly Expenses: $2,494

2 beds - 1 bath / 0 ft²

137 E 36 ST - Unit 24C

Murray Hill / COOP

$750,000

On market for $750,000

0% from ask / 33 days on market

Monthly Expenses: $2,642

2 beds - 1 bath / 0 ft²