Description
Perched on a high floor with a western exposure and views of One World Trade Center, this sun-filled, mint condition studio offers generous space, excellent light, in one of Brooklyn’s most desirable neighborhoods.
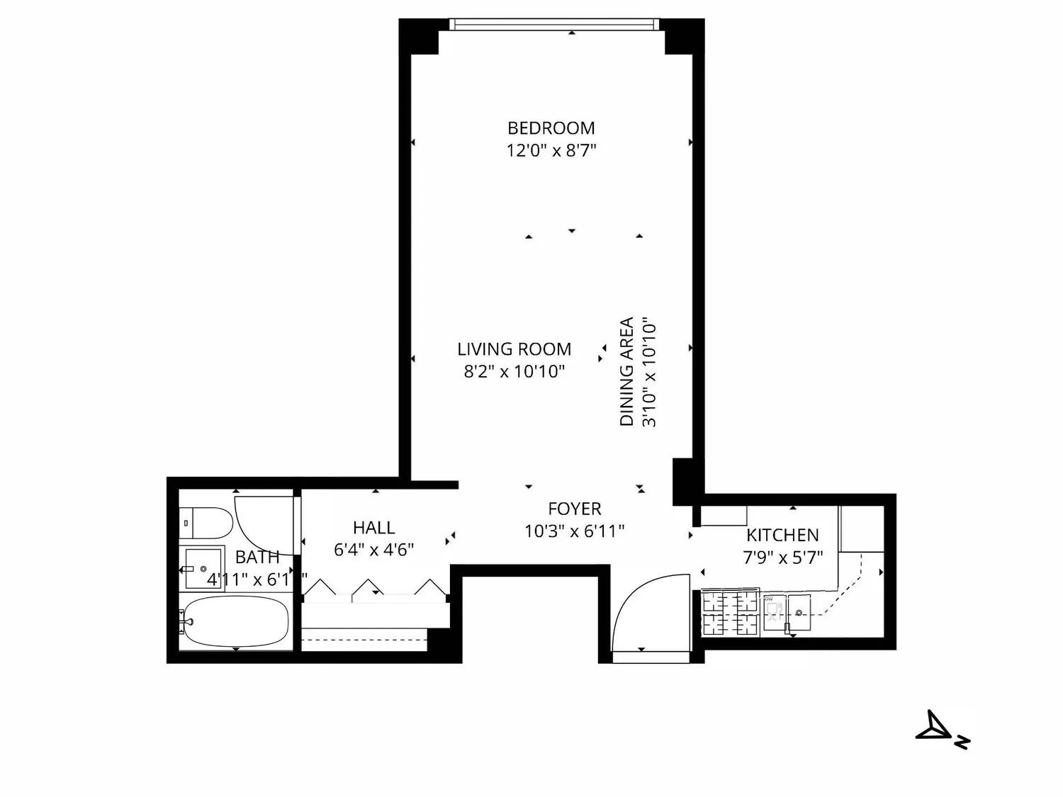
The smart layout separates the beautifully renovated kitchen with gas range/oven and dishwasher, and the sleek updated bathroom from the main living area, creating a comfortable sense of space and privacy. Oversized windows flood the apartment with natural light, while the expansive living and sleeping area easily accommodates a queen-sized bed, living room seating, and dining furniture. Built-in shelving and large closets provide abundant storage.
Located at the intersection of Fort Greene and Clinton Hill, Willoughby Walk is a well-maintained post-war cooperative built in 1958 and consisting of two matching high-rise buildings at 195 Willoughby Avenue and 185 Hall Street, together offering 574 residences. The full-service building features 24-hour attended entrances, a live-in superintendent, multiple elevators, central laundry facilities, bike storage and storage units as well as gated parking that is also available via waitlist. The cooperative is pet-friendly with board approval and allows co-purchasing, parents buying for children, and case-by-case subletting for up to one year.
It's located right across from the lush Pratt Institute campus and moments away from the destination dining on DeKalb Avenue and the boutiques of Myrtle Avenue. With the G train and Fort Greene Park just a short distance away, this is Brooklyn living at its most vibrant.
Move-in ready and shown by appointment.
View More
The smart layout separates the beautifully renovated kitchen with gas range/oven and dishwasher, and the sleek updated bathroom from the main living area, creating a comfortable sense of space and privacy. Oversized windows flood the apartment with natural light, while the expansive living and sleeping area easily accommodates a queen-sized bed, living room seating, and dining furniture. Built-in shelving and large closets provide abundant storage.
Located at the intersection of Fort Greene and Clinton Hill, Willoughby Walk is a well-maintained post-war cooperative built in 1958 and consisting of two matching high-rise buildings at 195 Willoughby Avenue and 185 Hall Street, together offering 574 residences. The full-service building features 24-hour attended entrances, a live-in superintendent, multiple elevators, central laundry facilities, bike storage and storage units as well as gated parking that is also available via waitlist. The cooperative is pet-friendly with board approval and allows co-purchasing, parents buying for children, and case-by-case subletting for up to one year.
It's located right across from the lush Pratt Institute campus and moments away from the destination dining on DeKalb Avenue and the boutiques of Myrtle Avenue. With the G train and Fort Greene Park just a short distance away, this is Brooklyn living at its most vibrant.
Move-in ready and shown by appointment.
Building Features 16 Floors287 Units
elevator
full time doorman
bike room
courtyard
laundry
parking
pet friendly
storage
Unit Features
dishwasher, gascooktop, stainlesssteelappliances
washerdryer
Exposures: West
Pet Policy: 2 pets total allowed, Building Pets Allowed
$400,000
Listed on Apr 08, 2026
50 Days on Market
Studio / 1 Bath - / - ft²
Total Monthly Expenses: $667
Exclusively listed with: Compass Source: RLS
Listing Courtesy of Compass
View Listing
Unit listing history
| Date | Status | Amount | Listed by | ||
|---|---|---|---|---|---|
| Loading History... | |||||