Description

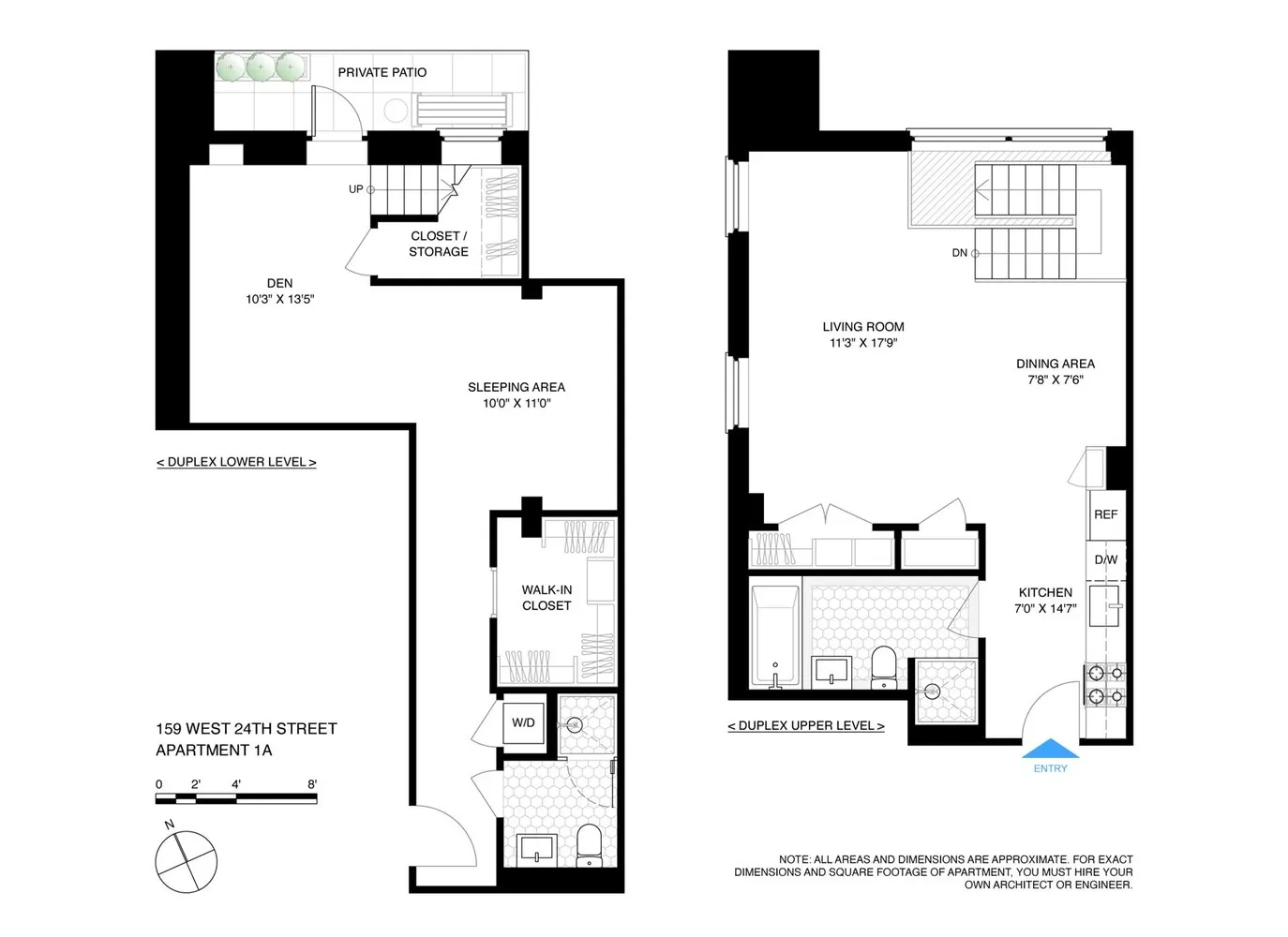
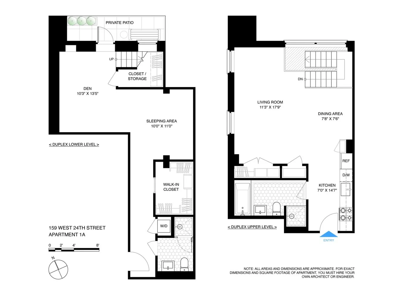
Welcome to Αpt 1A at the Carriage House, located at 159 West 24th Street in the vibrant Chelsea neighborhood! This incredible 1-bedroom, 2-bathroom duplex loft boasts an impressive 1,151 square feet of living space in this boutique condominium, blending luxury and comfort. With high 11.5-foot ceilings and 7-inch wide plank solid oak floors and oversized windows, you'll feel the spaciousness and style from the moment you step inside, creating a warm and inviting atmosphere that is perfect for both relaxation and entertaining.

The chef's kitchen is a culinary haven featuring custom wood cabinetry and top-notch stainless steel appliances, including a Wolf gas cooktop, Wolf convection oven, Subzero refrigerator, and Bosch dishwasher. Whether you're whipping up a quick meal or hosting a dinner party, this kitchen has everything you need. The spacious living/dining area layout flows seamlessly into the rest of the home.

With two full bathrooms, mornings are a breeze. The main floor bathroom offers a spa-like experience with well-appointed fixtures, radiant heating, soaking tub and a separate enclosed shower. On the lower level, the tranquil bedroom suite promises peaceful nights, complete with a walk-in California closet and an additional large closet for all your storage needs. The second bathroom also features refined finishes, adding a touch of elegance. A small private outdoor patio provides an opportunity to enjoy fresh air or add a touch of greenery to your decor.

For added convenience, this unit includes an indoor private parking space, making city living a little easier. You'll also find a Bosch washer and dryer for in-home laundry, allowing you to keep everything running smoothly without the hassle of shared facilities.

The Carriage House comes with fantastic building amenities, including part-time doorman for added convenience, an elevator for easy access, and a landscaped roof deck complete with furniture, grill and outdoor kitchen. With just 24 total units, the boutique building provides a sense of community while still maintaining privacy.

Located in a prime Chelsea spot, you'll have quick access to public transportation, including the 1, M, F, E, and C trains and 23rd St crosstown bus, along with nearby Whole Foods, Trader Joe's and a variety of dining and entertainment options. Experience the best of city living while enjoying the comfort of your own stylish oasis at Apt 1A!

View More

Building Features 7 Floors24 Units

elevator
part time doorman
garage
pet friendly
roofdeck

Unit Features

dishwasher
garden
washerdryer
Exposures: North, West
Pet Policy: Building Yes, No

$1,295,000 / $1,125 per ft²

$74,000  -  55 days ago

Listed on Feb 28, 2025

437 Days on Market

1 Bed / 2 Baths - / 1,151 ft²

Total Monthly expenses: $2,863

Maintenance: $1,189 / R.E. Taxes $1,674

Exclusively listed with: Douglas Elliman Real Estate Source: RLS

David S
Lewandowski

RONALD E
LENSE

[email protected]

(917) 848-8095

Listing Courtesy of Douglas Elliman Real Estate View Listing

Unit listing history

Date Status Amount Listed by
Loading History...