Description

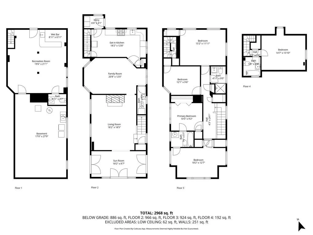
A RARE OPPORTUNITY IN A PRIME SHORE ROAD LOCATION!!! Set on an impressive 30' x 160' lot, this spacious home offers 5 bedrooms and 5 bathrooms, along with a private driveway and a detached two-car garage, a combination that is rarely found in the neighborhood.

Enter through the inviting enclosed front porch, the perfect place to relax and enjoy peaceful sunsets and seasonal breezes. The first floor features a gracious formal living room with a wood-burning fireplace, an elegant grand dining room ideal for large gatherings, and a spacious eat-in kitchen with access to the back patio. A convenient powder room completes this level.

The second floor offers four generously sized bedrooms and two full bathrooms, including a primary en suite. The third floor provides even more flexibility with a fifth bedroom and an additional full bathroom, ideal for guest space, a home office, or whatever best suits your needs.

The full basement includes a wet bar, half bath, and a separate room for storage, laundry, and utilities, with direct access to the backyard.

Throughout the home you’ll find beautifully refinished original parquet floors and an abundance of natural light from every room, capturing the warmth and sunset glow that make this home truly special.

The backyard is truly extraordinary, one of the largest in the area, offering endless possibilities to create your own private outdoor oasis. Whether you envision lush landscaping, a garden, a pool, or simply a peaceful retreat surrounded by greenery, this expansive space is ready to become your dream escape.

Located right off Shore Road Park and the scenic bike path, and with the express bus to Manhattan right around the corner, this home offers the perfect blend of beauty, comfort, and convenience in one of Brooklyn’s most sought-after neighborhoods!
View More

Building Features 3 Floors1 Units

intercom

$2,225,000 / $824 per ft²

$50,000  -  52 days ago

Listed on Oct 13, 2025

157 Days on Market

5 Beds / 3 Baths - / 2,698 ft²

Total Monthly expenses: $563

Maintenance: - / R.E. Taxes $563

Other Details:

Single Family

Lot Size: 30.0' x 160.0' Built: 18.0' x 50.0'

Zoning: A0-9

Exclusively listed with: Jabour Realty Company Source: Brooklyn MLS

Danielle
Jabour

[email protected]

(917) 217-1370

Wade
Jabour

Listing Courtesy of Jabour Realty Company

Unit listing history

Date Status Amount Listed by
Loading History...

Similar Listings for Sale

7724 COLONIAL ROAD - Unit HOUSE

Bay Ridge / TOWNHOUSE

$1,999,000

On market for $1,999,000

0% from ask / 65 days on market

Monthly Expenses: $0

4 beds - 3.0 baths / 2337 ft²

8311 COLONIAL ROAD - Unit HOUSE

Bay Ridge / TOWNHOUSE

$2,500,000

On market for $2,500,000

0% from ask / 4 days on market

Monthly Expenses: $0

4 beds - 2.0 baths / 2372 ft²

6659 COLONIAL ROAD - Unit HOUSE

Bay Ridge / TOWNHOUSE

$1,890,000

On market for $1,890,000

0% from ask / 1 day on market

Monthly Expenses: $0

7 beds - 3.0 baths / 2160 ft²

162 SENATOR ST - Unit HOUSE

Bay Ridge / TOWNHOUSE

$1,875,000

On market for $1,875,000

0% from ask / 45 days on market

Monthly Expenses: $0

3 beds - 3.0 baths / 2280 ft²

473 77 ST - Unit HOUSE

Bay Ridge / TOWNHOUSE

$1,850,000

On market for $1,850,000

2.78% above ask / 678 days on market

Monthly Expenses: $0

9 beds - 4.0 baths / 3134 ft²

352 68 ST - Unit HOUSE

Bay Ridge / TOWNHOUSE

$1,846,000

On market for $1,846,000

0% from ask / 153 days on market

Monthly Expenses: $0

7 beds - 3.0 baths / 2336 ft²

320 BAY RIDGE PARKWAY - Unit HOUSE

Bay Ridge / TOWNHOUSE

$1,799,999

On market for $1,799,999

-5.26% from ask / 106 days on market

Monthly Expenses: $0

- beds - 4.0 baths / 2592 ft²

474 SENATOR ST - Unit HOUSE

Bay Ridge / TOWNHOUSE

$1,799,000

On market for $1,799,000

0% from ask / 342 days on market

Monthly Expenses: $0

6 beds - 2.0 baths / 2592 ft²

418 82 ST - Unit HOUSE

Bay Ridge / TOWNHOUSE

$1,699,000

On market for $1,699,000

0% from ask / 5 days on market

Monthly Expenses: $0

- beds - 2.0 baths / 2240 ft²

480 84 ST - Unit HOUSE

Bay Ridge / TOWNHOUSE

$1,650,000

On market for $1,650,000

0% from ask / 647 days on market

Monthly Expenses: $0

7 beds - 2.0 baths / 2520 ft²

447 83 ST - Unit HOUSE

Bay Ridge / TOWNHOUSE

$1,598,000

On market for $1,598,000

-2.44% from ask / 194 days on market

Monthly Expenses: $0

8 beds - 3.0 baths / 2470 ft²

129 80 ST - Unit HOUSE

Bay Ridge / TOWNHOUSE

$2,890,000

On market for $2,890,000

0% from ask / 21 days on market

Monthly Expenses: $0

6 beds - 3.0 baths / 2506 ft²

511 SENATOR ST - Unit HOUSE

Bay Ridge / TOWNHOUSE

$1,550,000

On market for $1,550,000

0% from ask / 73 days on market

Monthly Expenses: $0

8 beds - 4.0 baths / 3095 ft²